Vendita Capannone in Loc. Zona Industriale
-
- Magliano de' Marsi, Laquila
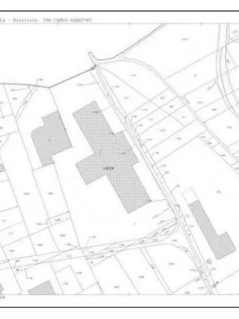
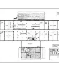
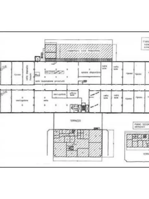
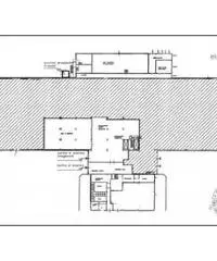
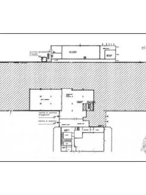
Compendio immobiliare sito nel Comune di Magliano de' Marsi, in zona industriale composto da: opificio industriale per la lavorazione delle carni con relativi uffici e servizi costituito da un piano terra di mq 7533,98, da un piano primo di mq 6693,40 oltre a terrazzo di mq 421,20, da un piano secondo di mq 2975,42, oltre terrazzo di mq 397,71, e da ulteriori n°3 piani in elevazione ciascuno di mq 2667,62 per una superficie complessiva di mq 25205,66, oltre terrazzi per mq 818,91; n° 3 appartamenti per civile abitazione ubicati al piano secondo del fabbricato rispettivamente di mq 107, mq 42 e mq 135, oltre mq. 25 di ballatoio e vano scala; capannone ad un solo piano fuori terra di mq 316,80 adibito a locale di disinfezione e manutenzione igienico ? sanitaria di automezzi; ulteriori terreni, esterni alla attuale recinzione e soggetti ad esproprio per viabilità di Piano, della superficie complessiva di mq. 1603. Contatta il nostro Competence Center per una consulenza tecnica e legale completamente gratuita. Codice di Riferimento Agenzia: 4923777
Contatta
Annunci correlati
-
Monopattino elettrico a quattro ruote con certificazione CE
450 € Uffici e Locali commerciali Napoli, ITA (Napoli, ITA) 2025/06/17Motopattino elettrico a quattro ruote con certificazione CE. Capacità di salita: 13 gradi. Capacità ...
-
Attività Commerciale, Gelateria. Fano
110.000 € Uffici e Locali commerciali Fano (Pesaro e Urbino) 2025/02/17Attività commerciale di gelateria composto da ingresso su balcone, laboratorio, scoperto esterno e b...
-
Ufficio 3 ambienti in Via degli Orti Villabianca
67.000 € Uffici e Locali commerciali Palermo (Palermo) 2025/02/16Proponiamo in vendita un ufficio situato nella prestigiosa zona residenziale di Don Bosco - Villabia...


