Vendita magazzino mq. 50 - Zona Oriago
-
- Mira, Venezia
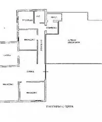
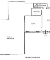
Tribunale di Venezia: IN ASTA Magazzino su corpo di fabbrica staccato. IN ASTA Appartamento al p. primo di un più ampio edificio condominiale di quattro unità abitative, su due piani fuori terra. Prezzo base Euro 135500,00. Eventuale vendita con incanto in data 22/11/2016 ore 04.00. G.E. Corder Paolo. . Rif. RGE 358/09. ATTENZIONE: i dati relativi alla vendita giudiziaria devono essere sempre verificati sull'avviso di vendita, ordinanza e perizia pubblicati su : aste . it o asteannunci . it Per la scheda dettagliata e contatti della procedura inserite il numero RGE e il tribunale di riferimento nei motori di ricerca di aste . it o asteannunci . it oppure chiamare il referente della procedura o il NUMERO VERDE 800 66 24 94. RICORDIAMO CHE: La vendita presso il Tribunale NON PREVEDE ALCUN COSTO A CARICO DELLACQUIRENTE SE NON LE IMPOSTE DI LEGGE e non e dovuta alcuna provvigione agli ausiliari del giudice, perito e custode giudiziario o a qualsiasi altra figura. Il Custode Giudiziario o il Curatore Fallimentare vi aiuteranno a partecipare ad un asta senza richiedere alcun compenso. Powered by GestionaleAsta . It Aste . It Astennunci . it - Gestionale OfficeCasa.it -
Contatta
Annunci correlati
-
Vendita laboratorio mq. 50 - Zona Sandon
42.525 € Uffici e Locali commerciali Fossò (Venezia) 2022/07/04Tribunale di Venezia: IN ASTA Laboratorio composto da un locale laboratorio, magazzino, locali spogl...
-
Vendita Capannone da 245mq
160.000 € Uffici e Locali commerciali Mirano (Venezia) 2022/07/04TRATTASI DI UN CAPANNONE (LABORATORIO) ARTIGIANALE, CORRISPONDENTE AD UNA PORZIONE POSIZIONATA AL PI...
-
Tombelle: Vendita Capannone in Via dell'Artigianato
390.000 € Uffici e Locali commerciali Vigonovo (Venezia) 2022/07/04Vendesi a Tombelle in zona artigianale in ottima posizione con ampio parcheggio esterno, a circa 800...


