area artigianale con progetto 5 capannoni
-
- Cesenatico, Forli
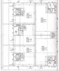
vendesi area artigianale di mq 3000 con progetto di 5 capannoni e cinque appartamenti e 5 uffici,nell'area e gia stato eseguito il riempimento,sono gia stati fatti tutti gli allacciamenti luce acqua telecom italcogim e scarico acque bianche e nere,gia eseguita la recinzione, oneri di urbanizzazione gia pagati,nn è il classico capannone fatto a scatola, al primo piano ci sono soppalchi,uffici e l'appartamento di 100mq calpestabili, ce un balcone di 2,5-3 mq che funge anche da tettoia e gira tutto intorno al capannone, per info 3358374949 foschi
Contatta
Annunci correlati
-
Affitto Magazzino in VIA ROMEA
250 € Uffici e Locali commerciali Cesena (Forli) 2022/07/04Affittiamo vano esclusivo di circa 20 mq per deposito o magazzino in ufficio/negozio di informatica/...
-
Affitto Magazzino in VIA ROMEA
900 € Uffici e Locali commerciali Cesena (Forli) 2022/07/04A Torre del Moro affittiamo magazzino di 269 mq con servizi. E' in posizione strategica essendo molt...
-
Affitto Capannone in VIA ZAVAGLIA
3.000 € Uffici e Locali commerciali Cesena (Forli) 2022/07/04Nella zona artigianale di Pievesestina affittiamo capannone di 850 mq calpestabili, a 500 metri dal ...


