Affitto Capannone da 625mq
6.500 €
-
- Ciampino, Roma
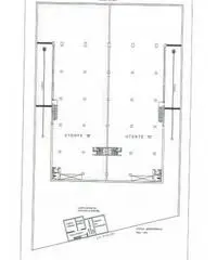
Locale D/7 in affitto , piano seminterrato con rampa privata, mq. 1250 piu' mq.- 100 di uffici, libero da dicembre 2016, zona industriale gregna s. andrea, adiacente Grande Raccordo anulare.
Contatta
Nome: Agenzia
6.500 €
Invia messaggioSolo per utenti registrati Inserito il 2022/07/04
Aggiungi un commento pubblico...
Annunci correlati
-
Affitto Capannone da 550mq
2.200 € Uffici e Locali commerciali Castelnuovo di Porto (Roma) 2022/07/04Capannone industriale MQ 550 CASTELNUOVO DI PORTO (RM), ZONA SALARIA uso magazzino e artigianale, pi...
-
Affitto Capannone da 1500mq
6.500 € Uffici e Locali commerciali San Cesareo (Roma) 2022/07/04San Cesareo Capannnone 1500 mq con uffici e zone servizi e patio esterno nuovissimo a 30 metri dall'...
-
Affitto Capannone da 280mq
1.120 € Uffici e Locali commerciali Castelnuovo di Porto (Roma) 2022/07/04Capannone C2/C3, MQ 280 CASTELNUOVO DI PORTO (RM), ZONA SALARIA, piano terra, buono stato di manuten...


