Trilocale con ampio garage e solaio
-
- Como, Como
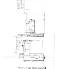
Appartamento in condominio signorile e tranquillo (non sulla strada) composto da ingresso ampio, cucina abitabile, soggiorno, due grandi camere, bagno, due balconi, totali 100mq. Garage più cantina (con finestra) 31mq totali con accesso interno al condominio, solaio di proprietà (con finestra) 12 mq con armadi su misura. Impianti elettrico ed idraulico rinnovati, parquet lamato. Le spese condominiali comprendono: acqua, riscaldamento, assicurazioni, ascensore, pulizie scale, sgombero pattumiera ed ordinaria manutenzione. Possibilità di bagno arredato
Contatta
Annunci correlati
-
Rif: BELLISSIMO APPARTAMENTO CON TERRAZZINO PANORAMICO - Appartamento in Vendita a Barni
78.000 € Case - Appartamenti in Vendita Barni (Como) 2022/06/19Ubicata in elegante residence, nella graziosa località di Barni,a poca distanza da Bellaggio da Canz...
-
Rif: 325/16 - Appartamento in Vendita a Beregazzo con Figliaro
238.000 € Case - Appartamenti in Vendita Beregazzo con Figliaro (Como) 2022/06/19– FIGLIARO: APPARTAMENTO SU DUE LIVELLI CON GIARDINO, BALCONE E BOX DOPPIO - L'ingresso apre diretta...
-
Rif: 219 - Appartamento in Vendita a Luisago
125.000 € Case - Appartamenti in Vendita Luisago (Como) 2022/06/19- LUISAGO Località Portichetto: BILOCALE ARREDATO con balcone, cantina e box - In zona servita a poc...


