Locale commerciale o uffici in Lottizzazione Cualbu

550 €
    • Oristano

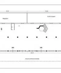
In zona lottizzazione Cualbu, con grande visibilita e ampia possibilita di parcheggio. Zona commerciale e artigianale piu importante di Oristano.480 mq di locale commerciale piu altri 480 mq ca di pertinenze per posti auto per il personale o mezzi da lavoro, in area all'aperto per la clientela, e magazzino. Il locale dispone di vetrine, bagni, diversi ingressi e si presenta in buone condizioni generali. All'interno unico ambiente personalizzabile e divisibile. Cedibili anche altri locali uso ufficio. Il prezzo medio del locale commerciale in questa zona e di euro 1400 al mq. Prezzo proposto euro 1000 al mq.Classe F

Contatta


Nome: Domos Immobiliare Oristano
550 €
Invia messaggioSolo per utenti registrati Inserito il 2022/06/12
Aggiungi un commento pubblico...

Annunci correlati

  • CAPANNONE AL CENTRO DELLA SARDEGNA

    CAPANNONE AL CENTRO DELLA SARDEGNA

    300 € Case - Appartamenti in Vendita Oristano 2022/06/12

    A Simaxis Capannone industriale commerciale artigianale al centro dellaSardegna a ridosso della ss 1...

  • CASA INDIPENDENTE CON GIARDINO

    CASA INDIPENDENTE CON GIARDINO

    57 € Case - Appartamenti in Vendita Sassari 2022/06/12

    In Sardegna, a SEMESTENE provincia di Sassari privato vende in centro abitato ma in zona tranquilla ...

  • Villa a Olbia

    Villa a Olbia

    200 € Case - Appartamenti in Vendita Olbia 2022/06/12

    In contesto collinare a circa 10 km dalla Rinomata Costa Smeralda tra Porto Cervo e Porto Rotondo - ...