Appartamento - San Paolo Bel Sito
-
- Italy
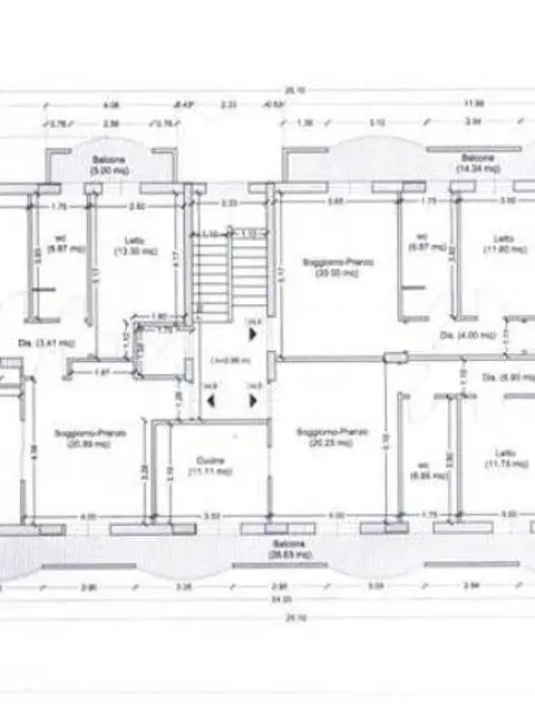
Posizione: San Paolo bel Sito, appartamenti situati a brevissima distanza dal centro raggiungibile anche a piedi in zona con presenza di scuole e negozi; tipologia: appartamento di nuova costruzione al piano rialzato, al primo e secondo piano, costituito da cucina oppure soggiorno/pranzo, due camere da letto, bagno con anti-bagno e ampia balconata di 15mq oppure terrazzo a livello con giardino; note: posto auto coperto oppure box nel seminterrato e cantinola, impianto di riscaldamento termoautonomo, appartamento posizionato in un piccolo condominio, superficie utile di 70mq, contesto residenziale, fabbricato dotato di ascensore, terrazzo di copertura pavimentato per l'ultimo piano con veduta panoramica fino a Napoli; esposizione : est-sud-ovest prezzo : a partire da Euro 130.000,00 Classe Energetica: C - SC3408521 Altre caratteristiche: Superficie: 70mq Numero locali: 3
Contatta
Annunci correlati
-
Appartamento - Lucca
180 € Camere in Affitto 2022/05/16S. MARCO - Appartamento di recente costruzione posto al piano primo e servito da ascensore. Si compo...
-
Appartamento in Vendita di 130mq - Lucca
210 € Camere in Affitto 2022/05/16PICCIORANA - Inserito in complesso residenziale del 2009, luminoso appartamento posto al p.primo piu...
-
Attico di 6 locali - zona CASA LANDOLINA
240 € Camere in Affitto 2022/05/16Misterbianco zona Landolina, Panoramico Attico di 6 Vani, Cucina, tripli servizi, Ampio Terrazzo a l...


